Centro Vastgoed | Kantoor | Volledig v... | 3268720

Provinciebaan 51, 8880 Ledegem
42 m² Grondopp.
42 m² Bebouwde opp.
€ 330 Prijs

Volledig vernieuwde instapklare KANTOORRUIMTEN voorzien van AIRCO. Diverse oppervlakten beschikbaar (25 t.e.m. 67m2). Korte-termijn huur mogelijk!

Omschrijving

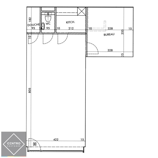
Bemeubelde kantoorruimten. 25-32-38-42-47-67 m².

AFWERKING: 
Elk kantoor is standaard bemeubeld, en beschikt over een eigen kitchenette, verwarming, airconditioning, en een toilet.
De gelijkvloerse kantoren hebben een eigen douche.

NUTSVOORZIENINGEN:
Elektriciteit, stadswater, airco (warm/koud), ventilatiesysteem, internet en telefonie.

LIGGING:
Gunstig gelegen met veel visibiliteit op een verbindingsweg nabij Ieper, Roeselare en Kortrijk op enkele minuten van de oprit A19.
Bushalte voor de deur.

Opmerkingen:
- Verhuurprijzen excl. btw (aftrekbaar voor zelfstandigen) en excl. onroerende voorheffing volgens aanslagbiljet
- Verhuurprijzen zijn incl. brandpolis huuraansprakelijkheid & bureautafels en stoelen (aantal naar keuze)
- Voldoende parkeerplaatsen + fietsenstalling
- Kantoorgebouw met uitstraling! 
- Onze ref.: O0117 op www.centro.be of contacteer ons op 050 70 01 02.

Ref. O0117

Ook benieuwd naar de marktwaarde van uw bedrijfspand?

Wij combineren marktinzicht met ervaring om samen het maximale uit jouw verkoop te halen.

Algemeen

  • Referentie O0117
  • Type Kantoor
  • Algemene staat Totale verbouwing
  • Bouwverplichting Nee
  • Renovatiejaar 2021
  • Renovatieverplichting Nee
  • Terrein opp. 42 m²
  • Bebouwde opp. 42 m²
  • Bebouwdbare opp. 42 m²
  • Bewoonbare opp. 42 m²
  • Onroerende voorheffing€ 330
  • Elektriciteitscertificaat aanwezig? Ja, conform
  • Asbestattest aanwezig? Nee

Comfort

  • Beglazing Dubbele

Indeling

  • Kantoor Aantal: 1
    Opp.: 42m²
  • Kitchenette Aantal: 1
  • Toilet Aantal: 1

Comfort

  • Airco Ja
  • Distributie Ja
  • Elektriciteit Ja
  • Internet Ja
  • Riolering Ja
  • Stadswater Ja

Informatieplicht

  • Stedenbouwkundige bestemming Industriegebied voor ambachtelijke bedrijven of gebieden voor kleine en middelgrote ondernemingen
  • Stedenbouwkundige vergunning Bouw vergund
  • Dagvaarding en herstelvordering Geen rechterlijke herstelmaatregel of bestuurlijke maatregel opgelegd
  • Voorkooprecht Geen voorkooprecht ruimtelijke ordening aanwezig
  • Verkavelingsvergunning Verkavelingsvergunning
  • Overstromingsgevoelig gebied Niet overstromingsgevoelig

Bereken uw route

Documenten

Een vraag? Stuur ons gerust een bericht!

Ons team staat voor je klaar met helder advies en een persoonlijke aanpak. Vul het formulier in en we nemen snel contact met je op.

Uw contactpersoon

Niet gevonden wat u zocht?

Zoekt u een specifiek pand? 
Aangezien DISCRETIE belangrijk is voor bepaalde eigenaars,
plaatsen wij NIET al ons volledig vastgoed online!
Meer weten over dit aanbod? Dit kan via een volgend contactformulier.